Stabile, San Giovanni Lupatoto
San Giovanni Lupatoto€ 772000
20 Locali
576 m2
3 Bagni
Piano 2
Descrizione
Proposta di Vendita – Intero Stabile o Singole Unità Immobiliari
📍 Ubicazione: Via Adige San Giovanni Lupatoto – Stabile residenziale con pertinenze e posti auto.
📑 Disponibilità: Si valuta la vendita in blocco dell’intero fabbricato oppure la cessione delle singole unità immobiliari, attualmente locate.
🔑 Dotazioni comuni:
Ogni appartamento è corredato da cantina e posto auto coperto, e' dotato di riscaldamento autonomo a gas.
Finiture anni 60. Alcuni appartamenti sono stati oggetto di migliorie per lavori eseguiti come da schede seguenti.
Superficie complessiva dello stabile: 576,84 mq commerciali.
---
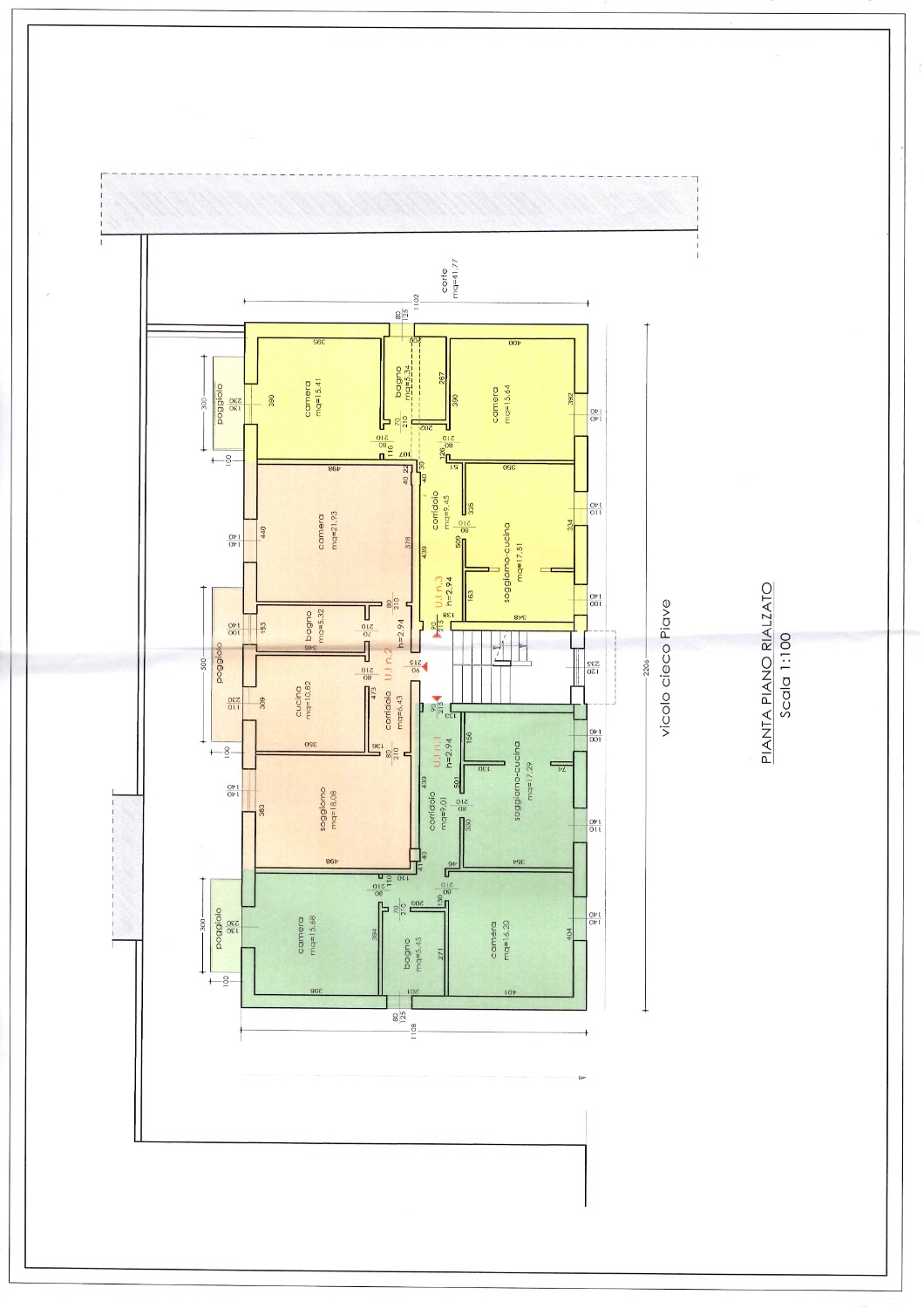
Unità 1 – C.n.1 (Appartamento)
Superficie commerciale totale: 102,80 mq
Composizione: ingresso, soggiorno, cucinotto, 2 camere matrimoniali, bagno finestrato, balcone
Pertinenze: cantina + posto auto coperto
Canone annuo percepito: € 5.160 (pari a € 430/mese)
Scadenza contratto: 31/12/2026
Lavori eseguiti: rifacimento impermeabilizzazione copertura nel 2023, serramenti nuovi in pvc e vetrocamera - 2015
Valore di vendita: € 142.000
---
Unità 2 – C.n.2 (Appartamento)
Superficie commerciale totale: 91,28 mq
Composizione: ingresso, soggiorno, cucina, camera matrimoniale, bagno finestrato, balcone.
Pertinenze: cantina + posto auto coperto
Canone annuo percepito: € 4.800 (pari a € 400/mese)
Scadenza contratto: 30/04/2025
Lavori eseguiti: rifacimento impermeabilizzazione copertura nel 2023, serramenti nuovi in pvc e vetrocamera - 2015
Valore di vendita: € 120.000
---
Unità 3 – C.n.3 (Appartamento)
Superficie commerciale totale: 98,50 mq
Composizione: ingresso, soggiorno, cucinotto, 2 camere matrimoniali, bagno finestrato, balcone
Pertinenze: cantina + posto auto coperto
Canone annuo percepito: € 5.160 (pari a € 430/mese)
Scadenza contratto: 28/02/2027
Lavori eseguiti:rifacimento impermeabilizzazione copertura nel 2023, serramenti nuovi in legno e vetrocamera - 2000
Valore di vendita: € 135.000
---
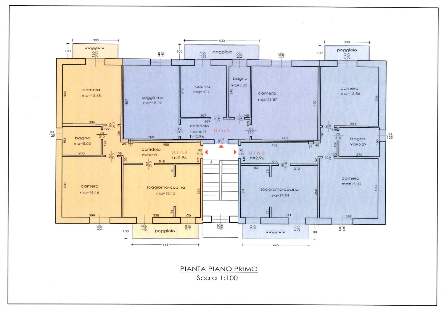
Unità 4 – C.n.6 (Appartamento)
Superficie commerciale totale: 104,50 mq
Composizione: ingresso, soggiorno, cucinotto, 2 camere matrimoniali, bagno finestrato, balcone
Pertinenze: cantina + posto auto coperto
Canone annuo percepito: € 5.400 (pari a € 450/mese)
Scadenza contratto: 31/08/2026
Lavori eseguiti:rifacimento impermeabilizzazione copertura nel 2023, serramenti nuovi in pvc e vetrocamera - 2019, impianto elettrico nuovo, caldaia nuova 2019
Valore di vendita: € 135.000
---
Unità 5 – C.n.4 (Appartamento)
Superficie commerciale totale: 80,68 mq
Composizione: ingresso, soggiorno, cucina, camera matrimoniale, bagno finestrato, balcone.
Pertinenze: cantina + posto auto coperto
Canone annuo percepito: € 4.800 (pari a € 400/mese)
Scadenza contratto: 14/12/2025
Lavori eseguiti: rifacimento impermeabilizzazione copertura nel 2023, serramenti nuovi in pvc e vetrocamera - 2015
Valore di vendita: € 105.000
---
Unità 6 – C.n.5 (Appartamento)
Superficie commerciale totale: 99,09 mq
Composizione: ingresso, soggiorno, cucinotto, 2 camere matrimoniali, bagno finestrato, balcone
Pertinenze: cantina + posto auto coperto
Canone annuo percepito: € 5.400 (pari a € 450/mese)
Scadenza contratto: 30/09/2026
Lavori eseguiti:rifacimento impermeabilizzazione copertura nel 2023, serramenti nuovi in legno e vetrocamera - 2000
Valore di vendita: € 135.000
---
Sintesi Investimento
Totale superficie commerciale compresive di pertinenze e accessori: 576,84 mq
Totale canoni annui percepiti: € 30.720,00
Rendita media annua per unità: ca. € 5.120
Prezzo complessivo richiesto per l’intero stabile: € 772.000 compresivo di cantine e posti auto coperti
Gli immobili sono vendibili anche per singola unita' . Per maggiori informazioni contattare l'agenzia Mingoni & Partners.
📍 Ubicazione: Via Adige San Giovanni Lupatoto – Stabile residenziale con pertinenze e posti auto.
📑 Disponibilità: Si valuta la vendita in blocco dell’intero fabbricato oppure la cessione delle singole unità immobiliari, attualmente locate.
🔑 Dotazioni comuni:
Ogni appartamento è corredato da cantina e posto auto coperto, e' dotato di riscaldamento autonomo a gas.
Finiture anni 60. Alcuni appartamenti sono stati oggetto di migliorie per lavori eseguiti come da schede seguenti.
Superficie complessiva dello stabile: 576,84 mq commerciali.
---
Unità 1 – C.n.1 (Appartamento)
Superficie commerciale totale: 102,80 mq
Composizione: ingresso, soggiorno, cucinotto, 2 camere matrimoniali, bagno finestrato, balcone
Pertinenze: cantina + posto auto coperto
Canone annuo percepito: € 5.160 (pari a € 430/mese)
Scadenza contratto: 31/12/2026
Lavori eseguiti: rifacimento impermeabilizzazione copertura nel 2023, serramenti nuovi in pvc e vetrocamera - 2015
Valore di vendita: € 142.000
---
Unità 2 – C.n.2 (Appartamento)
Superficie commerciale totale: 91,28 mq
Composizione: ingresso, soggiorno, cucina, camera matrimoniale, bagno finestrato, balcone.
Pertinenze: cantina + posto auto coperto
Canone annuo percepito: € 4.800 (pari a € 400/mese)
Scadenza contratto: 30/04/2025
Lavori eseguiti: rifacimento impermeabilizzazione copertura nel 2023, serramenti nuovi in pvc e vetrocamera - 2015
Valore di vendita: € 120.000
---
Unità 3 – C.n.3 (Appartamento)
Superficie commerciale totale: 98,50 mq
Composizione: ingresso, soggiorno, cucinotto, 2 camere matrimoniali, bagno finestrato, balcone
Pertinenze: cantina + posto auto coperto
Canone annuo percepito: € 5.160 (pari a € 430/mese)
Scadenza contratto: 28/02/2027
Lavori eseguiti:rifacimento impermeabilizzazione copertura nel 2023, serramenti nuovi in legno e vetrocamera - 2000
Valore di vendita: € 135.000
---
Unità 4 – C.n.6 (Appartamento)
Superficie commerciale totale: 104,50 mq
Composizione: ingresso, soggiorno, cucinotto, 2 camere matrimoniali, bagno finestrato, balcone
Pertinenze: cantina + posto auto coperto
Canone annuo percepito: € 5.400 (pari a € 450/mese)
Scadenza contratto: 31/08/2026
Lavori eseguiti:rifacimento impermeabilizzazione copertura nel 2023, serramenti nuovi in pvc e vetrocamera - 2019, impianto elettrico nuovo, caldaia nuova 2019
Valore di vendita: € 135.000
---
Unità 5 – C.n.4 (Appartamento)
Superficie commerciale totale: 80,68 mq
Composizione: ingresso, soggiorno, cucina, camera matrimoniale, bagno finestrato, balcone.
Pertinenze: cantina + posto auto coperto
Canone annuo percepito: € 4.800 (pari a € 400/mese)
Scadenza contratto: 14/12/2025
Lavori eseguiti: rifacimento impermeabilizzazione copertura nel 2023, serramenti nuovi in pvc e vetrocamera - 2015
Valore di vendita: € 105.000
---
Unità 6 – C.n.5 (Appartamento)
Superficie commerciale totale: 99,09 mq
Composizione: ingresso, soggiorno, cucinotto, 2 camere matrimoniali, bagno finestrato, balcone
Pertinenze: cantina + posto auto coperto
Canone annuo percepito: € 5.400 (pari a € 450/mese)
Scadenza contratto: 30/09/2026
Lavori eseguiti:rifacimento impermeabilizzazione copertura nel 2023, serramenti nuovi in legno e vetrocamera - 2000
Valore di vendita: € 135.000
---
Sintesi Investimento
Totale superficie commerciale compresive di pertinenze e accessori: 576,84 mq
Totale canoni annui percepiti: € 30.720,00
Rendita media annua per unità: ca. € 5.120
Prezzo complessivo richiesto per l’intero stabile: € 772.000 compresivo di cantine e posti auto coperti
Gli immobili sono vendibili anche per singola unita' . Per maggiori informazioni contattare l'agenzia Mingoni & Partners.
Caratteristiche
| RIFERIMENTO E DATA | T901 - 05/12/2025 |
| TIPO CONTRATTO | Vendita |
| TIPOLOGIA IMMOBILE | Stabile |
| SUPERFICIE | 576 m2 |
| LOCALI | 20 (10 Camere da letto), Cucina Abitabile, Cucina Abitabile, 3 bagni |
| PIANO | 2 |
| CAR PARKING | Posto auto coperto |
Spese
| PREZZO | 772000€ |
| SPESE CONDOMINIALI | No spese condominiali |
Efficienza Energetica
| ANNO DI COSTRUZIONE | 1960 |
| CONDIZIONE | Originale |
| RISCALDAMENTO | Autonomo Gas |
| EFFICIENZA ENERGETICA | 178kWh/m2 |
Planimetria

