Rustico/casale, Colognola ai Colli
Colognola ai Colli - Via Battisti€ 110000
6 Locali
120 m2
1 Bagni
Descrizione
San Zeno di Colognola ai Colli, proponiamo in vendita rustico fronte strada, completamente da ristrutturare, ideale come abitazione principale per chi desidera creare una casa su misura in una zona ben collegata e facilmente raggiungibile. Acquistando l’immobile come prima casa e portando la residenza, è possibile usufruire del bonus ristrutturazione con detrazione del 50% delle spese sostenute, rendendo l’intervento particolarmente conveniente. La proprietà si sviluppa su più livelli:
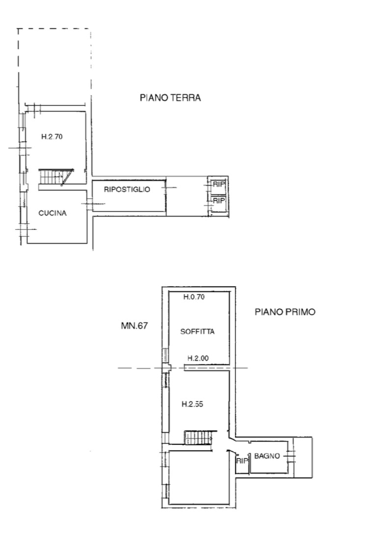
Al Piano terra
• Garage fronte strada
• Cantina
• Zona giorno con salotto e cucina
• Giardino d’inverno.
Al Piano primo
• Bagno
• Tre camere da letto
• sottotetto
L’immobile è totalmente da ristrutturare, consentendo una completa riprogettazione degli spazi interni, anche con soluzioni moderne di isolamento acustico ed energetico.
Al Piano terra
• Garage fronte strada
• Cantina
• Zona giorno con salotto e cucina
• Giardino d’inverno.
Al Piano primo
• Bagno
• Tre camere da letto
• sottotetto
L’immobile è totalmente da ristrutturare, consentendo una completa riprogettazione degli spazi interni, anche con soluzioni moderne di isolamento acustico ed energetico.
Caratteristiche
| RIFERIMENTO E DATA | T604 - 11/02/2026 |
| TIPO CONTRATTO | Vendita |
| TIPOLOGIA IMMOBILE | Rustico/casale |
| SUPERFICIE | 120 m2 |
| LOCALI | 6 (3 Camere da letto), Cucina Abitabile |
Spese
| PREZZO | 110000€ |
| SPESE CONDOMINIALI | No spese condominiali |
Efficienza Energetica
| ANNO DI COSTRUZIONE | 1960 |
| CONDIZIONE | Da Ristrutturare |
| EFFICIENZA ENERGETICA | 212.99kWh/m2 |
Planimetria
